2 комнатная квартира - Минск, Гастелло, 8
Продается светлая просторная 2-комнатная квартира по ул. Гастелло 8.
ЖК «Гастело» удачно вписан в уже сформированный микрорайон центра столицы : от шумной транспортной артерии пр. Победителей его прикрывает первая линия застройки, в тоже время в пешей доступности зеленые зоны парка Победы и бульвара Грибоедова, а также зона отдыха набережной Комсомольского озера.
- Монолитно-каркасный дом повышенной комфортности 2024 года постройки. Наружные стены - кирпич, наружная отделка – вентилируемый фасад.
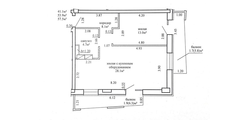
- Квартира расположена на четвертом этаж. Квартира представляет собой просторную гостиную с выводами под кухонное оборудование и отдельную комнату у каждого помещения свой балкон, балконы на разные стороны дома. Три окна в гостиной дают возможность для зонирования помещения по своему усмотрению.
- Параметры квартиры: 57,5(СНБ) 53,9/41,1 м. кв., санузел совмещен, высота потолка-2,68м.
- В квартире выполнена черновая строительная отделка: выровнены и оштукатурены стены, стяжка на полу, разводка электричества и коммуникаций, установлен унитаз в санузле.
- Подземный двухуровневый паркинг оборудован зарядными устройствами для электромобилей.
- Скоростные лифты OTIS с прямым спуском в паркинг.
- Видеонаблюдение в доме и по периметру с доступом к камерам через мобильное приложение.
- Благоустроенный двор с оборудованной современной детской площадкой
Расположение дома радует тишиной уютного дворика и позволяет наслаждаться всеми преимуществами инфраструктуры центра города.
Идеальный вариант, как для проживания, так и для инвестиций в арендный бизнес с высокой арендной ставкой.
Контактный телефон специалиста: +375-29-633-58-08 Марина.
Некогда позвонить, пишите: +375-29-375-80-90 (Viber, WhatsApp, Telegram).
Звоните, организуем просмотр в удобное для Вас время!
Разместим Ваш объект недвижимости на рекламных площадках более чем 50 стран мира.
Присоединяйтесь к нам в соцсетях:
Instagram
Facebook
YouTube
VK
OK
ООО «Сильван-Инвест», УНП 192927433, лицензия №02240/383, Министерство юстиции РБ, 24.09.2019.
Посмотреть на карте
Характеристики
| Цена: | 414 665р. (139 000$) |
|---|---|
| Тип: | квартира |
| Адрес: | Минск Гастелло 8 |
| Площадь: | 57.50 / 41.10 / 0 / 0м2 |
| Год постр.: | 2024 |
| Район: | Центральный |
| Микрорайон: | Победителей, Заславская |
| Этаж: | 4 |
| Этажность здания: | 12 |
| с/у: | совмещенный |
| Материал стен: | монолитно-каркасный |
| Балкон: | есть |
| Состояние: | без отделки |
| Договор на оказание риэлт. услуг: | 68/4 от 24.10.2025 до 01.02.2026 |





