Продажа административно - торгового помещения - Минск, Богдановича, 142
Продажа административно - торгового помещения
Адрес: Минск, ул. М. Богдановича, 142
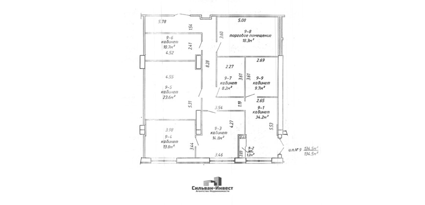
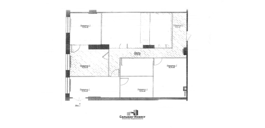
Площадь: 134,5 м²
Стоимость: 1 480 $/м², 0% - НДС
Расположены помещения на 2- м подземном этаже блочной подземной двухуровневой автостоянки (1 этаж - вход со стороны парковки) , 2014 года постройки. Развитая инфраструктура района, плотная жилая застройка, рядом ул. Некрасова - Бангалор.
Характеристики:
- Выгодное расположение
- Отдельный вход
- Удобные подъездные пути
- Кабинетная система (холл, ресепшн, кухня, переговорная)
- Наземная парковка
- Безопасность - пропускная система
Покупатель не оплачивает услуги риэлтерской организации!
Ваш агент – Андрей Смолка
+375(44) 7-800-863, +375(29) 7-800-863
Короткий номер (МТС, А1, Life): 7-800
Больше предложений на САЙТЕ Silvan7800.by
Присоединяйтесь к нам в соцсетях:
Instagram
Facebook
VK
OK
YouTube
Договор № 39/3 от 23.06.2025 по 22.06.2027
ООО «Сильван - Инвест», УНП 192927433, лицензия №02240/383, Министерство юстиции РБ, 24.09.2019.
Посмотреть на карте
Характеристики
| Цена: | 199 060$ (568 196.86р.) |
|---|---|
| Цена за метр: | 1 480$/м2 (4 224.51р.) |
| Тип: | офис, торговое, сфера услуг, кафе/ресторан, стрит ритэйл |
| Адрес: | Минск, Богдановича, 142 |
| Площадь: | 134.50 м2 |
| Год постр.: | 2014 |
| Метро: | Академия наук |
| Этаж: | 1 |
| Этажность здания: | 2 |
| с/у: | c/у |
| Телефон: | более 5 телефонов |
| Отопление: | отопление |
| Свет: | свет |
| Юр. адрес: | юридический адрес |
| Отдельный вход: | да |
| Первый этаж: | да |
| Кондиционер: | Есть |
| Наличие парковки/машиномест: | парковка |
| Договор на оказание риэлт. услуг: | № 39/3 от 23.06.2025 по 22.06.2027 |

Скачать мини-презентацию




