Продажа отдельно стоящего здания (капитального строения) - Барановичи, Дзержинского, 7
Продажа отдельно стоящего здания (капитального строения)
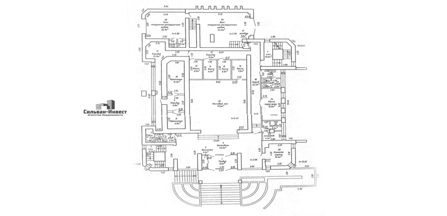
Адрес:Брестская обл., г. Барановичи, ул. Дзержинского, 7
Площадь общая: 1 138,7 м²
Стоимость: 341 610$, в т.ч. НДС
Четырехэтажное кирпичное административного здание банка с цокольным этажом, двумя кирпичными пристройками, крыльцом, забором и воротами, расположено на земельном участке 0,1664 га.
Характеристики:
- Статусная локация
- Удобное расположение
- Близость к центру города
- Хороший ремонт
- Высокая инсоляция
- Освещение, отопление
- Наземная парковка
Удобные подъездные пути – рядом расположены остановки общественного транспорта.
В шаговой доступности расположены множество магазинов, кафе - развитая инфраструктура.
Покупатель не оплачивает услуги риэлтерской организации!
Ваш агент – Андрей Смолка
+375(44) 7-800-863, +375(29) 7-800-863
Короткий номер (МТС, А1, Life): 7-800
Больше предложений на САЙТЕ Silvan7800.by
Присоединяйтесь к нам в соцсетях:
Instagram
Facebook
VK
OK
YouTube
Договор № 16/3 от 10.04.2025 по 09.04.2027
ООО «Сильван-Инвест», УНП 192927433, лицензия №02240/383, Министерство юстиции РБ, 24.09.2019.
Посмотреть на карте
Характеристики
| Цена: | 341 610$ (1 002 147.1р.) |
|---|---|
| Цена за метр: | 300$/м2 (880.08р.) |
| Тип: | офис, склад, здание, торговое, сфера услуг, производство, кафе/ресторан, стрит ритэйл |
| Адрес: | Барановичи, Дзержинского, 7 |
| Площадь: | 1138.70 м2 |
| Этажность здания: | 4 |
| с/у: | c/у |
| Телефон: | более 5 телефонов |
| Отопление: | отопление |
| Свет: | свет |
| Юр. адрес: | юридический адрес |
| Отдельный вход: | 2 |
| Площадь зем. участка: | 0,1664 Га |
| Наличие парковки/машиномест: | парковка |
| Договор на оказание риэлт. услуг: | № 16/3 от 10.04.2025 по 09.04.2027 |

Скачать мини-презентацию




