Продажа производство, склады, административные помещения - Марьина Горка, Новая Заря, 33/А
                                                        Производство,  склад ,  административные помещения
г. Марьина Горка, ул. Новая Заря , 33А
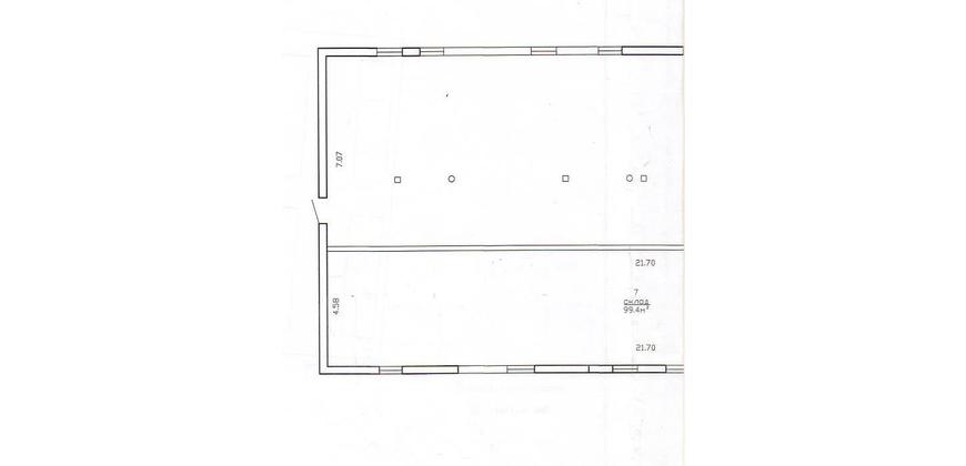
Площадь: от  524,5 м² 
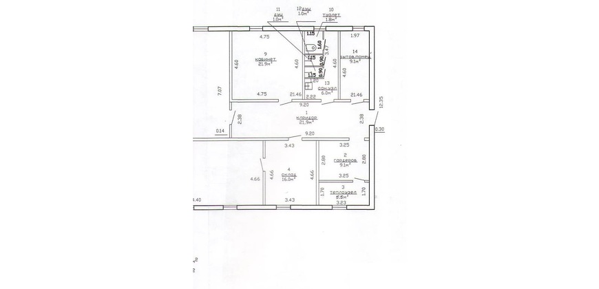
Состав объекта: 
здание специализированное производственное (щитовое, облицованное кирпичом) - 524,5 м²
Цена: 190 $/м² в т.ч. НДС
Земельный участок: 0,9373 га 
Покупатель не оплачивает услуги риэлтерской организации!
Одноэтажное здание с ремонтом. Здание отапливаемое (собственная котельная на пиллетах). Собственная электроподстанция. Территория огорожена, охрана.
Характеристики:
• отдельные входы;
• доступ 24/7;
• оптоволокно;
• естественная вентиляция;
• коммуникации: отопление, вода, канализация, электричество.
Ваш агент  - Смолка Андрей
+375(44) 7-800-863, +375(29) 7-800-863 
Короткий номер (МТС, А1, Life): 7-800
Договор №2/3 от 17.01.2025 до 17.01.2027
ООО «Сильван-Инвест», УНП 192927433, лицензия №02240/383, Министерство юстиции РБ, 24.09.2019.
                        
Посмотреть на карте
Характеристики
| Цена: | Договорная | 
|---|---|
| Цена за метр: | 190$/м2 (565.67р.) | 
| Тип: | офис, склад, здание, производство | 
| Адрес: | Марьина Горка, Новая Заря, 33/А | 
| Площадь: | 524.50 м2 | 
| Этаж: | 1 | 
| Этажность здания: | 1 | 
| с/у: | c/у | 
| Отопление: | отопление | 
| Свет: | свет | 
| Отдельный вход: | да | 
| Площадь зем. участка: | 0.9373 Га | 
| Договор на оказание риэлт. услуг: | №2/3 от 17.01.2025 до 17.01.2027 | 
 
                                                                                                        
                                                    
                                                
 
                         
                                 
                                 
                                 
                                 
                                 
                                 
                                 
                                 
                                 
                                 
                                 
                                 
                                 
                                 
                                 
                                 
                                 
                                 
                                 
                                 
                                 
                                 
                                 
                                 
                                 
                                 
                                 
                                 
                                 
                                 
                                 
                                 
                                 
                                 
                                 
                                 
                                 
                                 
                                 
                                 
                                 
                                 
                                 
                                 
                                 
                                 Скачать мини-презентацию
Скачать мини-презентацию 
                                 
                                 
                                 
                                



