Продажа помещений с отдельным входом в БЦ «Forum Plaza» - Минск, Козлова пер., 25
Продажа помещений с отдельным входом в БЦ «Forum Plaza»
Адрес: г. Минск, пер. Козлова, 25
Площадь: 1 251,6 м2
- 415,1 м2 (1,2-й этаж)
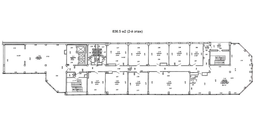
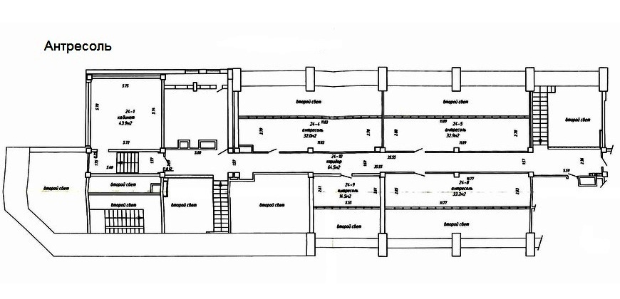
- 836,5 м2 (2-й этаж с антресолью)
Цена: 2 252 880 $ (в т.ч. НДС)
1 800 $/м2
Покупатель не оплачивает услуги риэлтерской организации!
Помещения с антресолью расположено на 1, 2-м уровне бизнес-центра «Forum Plaza»:
• обеденный зал на 1-м этаже - 244.2 м2;
• высота потолков: до 5 м;
• приточно-вытяжная система вентиляции, кондиционирование;
• панорамное остекление, высокий уровень инсоляции;
• хороший ремонт, приточно-вытяжная система вентиляции, кондиционирование;
• оптоволоконные коммуникации (разведены сети);
• высота потолков: от 2.7 до 6 м.
• предусмотрен санузел;
• отдельные входы в помещение с этажей;
• в бизнес-центре: видеонаблюдение, круглосуточная охрана, 3 лифта KONE (Финляндия), презентабельная входная группа и зона ресепшен;
• доступ - 24/7.
Инфраструктуру деловой среды бизнес-центра также формируют: собственная служба эксплуатации зданием, кафе, конференц-зал, охраняемая парковка, собственная парковка вокруг здания АЗС, автомоечный комплекс.
Преимущество местоположения: центральная часть города, пересечение 3-х магистралей: улицы Козлова, Академической и переулка Козлова. Рядом находится водно-парковая зона, Ботанический сад, в 2 км. находятся несколько станций метро: "Площадь Победы", "Пл. Я.Купалы", Академия наук", "Тракторный завод".
Ваш агент - Смолка Андрей
+375(44) 7-800-863, +375(29) 7-800-863
Короткий номер (МТС, А1, Life): 7-800
Посмотреть на карте
Характеристики
| Цена: | 2 252 880$ (6 376 776.84р.) |
|---|---|
| Цена за метр: | 1 800$/м2 (5 094.9р.) |
| Тип: | офис, торговое, сфера услуг, кафе/ресторан, стрит ритэйл, бизнес центр |
| Адрес: | Минск, Козлова пер., 25 |
| Площадь: | 1251.60 м2 |
| Год постр.: | 2018 |
| Район: | Первомайский |
| Микрорайон: | Ботаническая, Академическая |
| Метро: | Победы пл. |
| Этаж: | 2 |
| Этажность здания: | 9 |
| с/у: | c/у |
| Телефон: | более 5 телефонов |
| Отопление: | отопление |
| Свет: | свет |
| Юр. адрес: | юридический адрес |
| Отдельный вход: | 2 |
| Кондиционер: | Есть |
| Договор на оказание риэлт. услуг: | №11/4 от 12.03.2025 по 11.03.2027 |

Скачать мини-презентацию




