Аренда складских многофункциональных помещений - Логойск, ул. Минская, 2/Ж
Аренда складских многофункциональных помещений
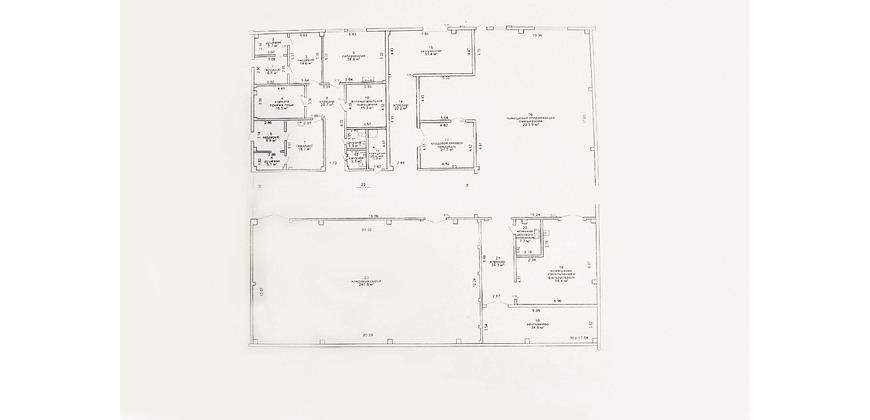
Адрес: г. Логойск, ул. Минская, д. 2Ж
Площадь: 393,1 + 881,9 м² (1 275 м²)
Цена – 3 $/м², НДС включен
Отапливаемые слады с высокими потолками
Преимущества:
• все необходимые условия для работы
• высота потолков склада — 7,64 м.
• пол – бетон
• стоянка
• круглосуточный доступ
• холодное и горячее водоснабжение
• канализация
Удобные подъездные пути – недалеко расположена автобусная остановка.
Арендатор не оплачивает услуги риэлтерской организации!
Ваш агент – Андрей Смолка
+375(44) 7-800-863, +375(29) 7-800-863
Короткий номер (МТС, А1, Life): 7-800
Больше предложений на САЙТЕ Silvan7800.by
Присоединяйтесь к нам в соцсетях:
Instagram
Facebook
VK
OK
YouTube
Договор № 116/3а от 23.12.2025 по 22.12.2027
ООО «Сильван-Инвест», УНП 192927433, лицензия №02240/383, Министерство юстиции РБ, 24.09.2019.
Посмотреть на карте
Характеристики
| Цена: | 3$ (8.42р.) |
|---|---|
| Цена за метр: | от 3$/м2 (8.42р.) |
| Тип: | офис, склад, здание, торговое, сфера услуг, производство |
| Адрес: | Логойск, ул. Минская, 2/Ж |
| Площадь: | 393.10 - 1275 м2 |
| Этаж: | 1 |
| Этажность здания: | 1 |
| с/у: | c/у |
| Отопление: | отопление |
| Свет: | свет |
| Юр. адрес: | юридический адрес |
| Отдельный вход: | да |
| Первый этаж: | да |
| Договор на оказание риэлт. услуг: | № 116/3а от 23.12.2025 по 22.12.2027 |

Скачать мини-презентацию




