Аренда тёплого склада - аг. Колодищи, Тюленина, 18/1
Аренда тёплого склада Колодищи, Минск
Адрес: аг. Колодищи, ул. Тюленина, 18-1
Площадь: 706,4 – 853,6 м²
Ставка аренды: 35 руб./м², в т.ч. НДС - 20%
В АРЕНДНУЮ СТАВКУ ВКЛЮЧЕНЫ НДС, КОММУНАЛЬНЫЕ И ЭСКПЛУАТАЦИОННЫЕ ПЛАТЕЖИ!
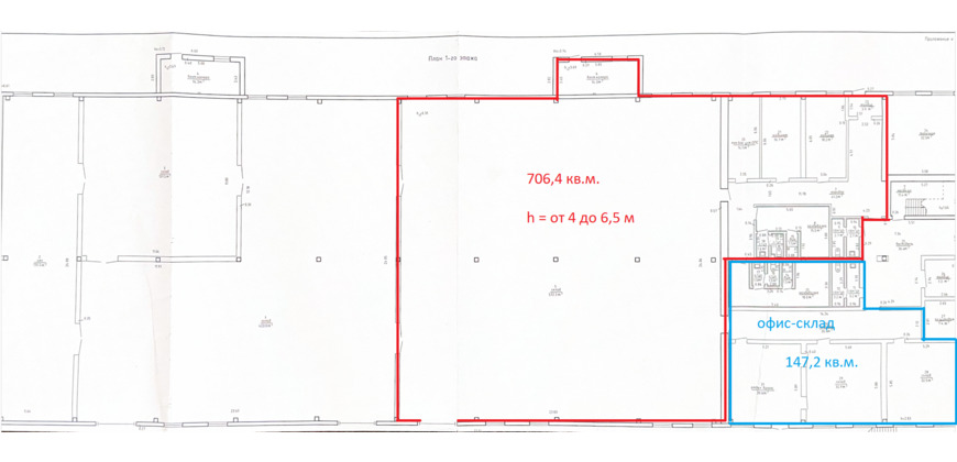
Площадь склада 706,4 м²
Доступ на территорию 24/7.
Большая площадка для разворота фур, удобные подъездные пути.
Высота потолков от 4 до 6,5 м.
Стеллажная установка входит в стоимость аренды (при необходимости)
Автономное отопление от газовой котельной.
Ворота в уровень земли, имеются навесы от дождя и снега.
Так же имеется офис-склад на 1-ом этаже - 147,2 м².
Преимущества:
• 24/7
• любая мощность кВт
• газовая котельная
• оптоволокно, видеодомофон
• удобные подъездные пути
• остановка о/т
Арендатор не оплачивает услуги риэлтерской организации!
Ваш агент – Гончаров Владислав
+375(44) 7-800-863, +375(29) 7-800-863
Короткий номер (МТС, А1, Life): 7-800
Больше предложений на САЙТЕ Silvan7800.by
Присоединяйтесь к нам в соцсетях:
Instagram
Facebook
VK
OK
YouTube
Договор № 13/3а от 15.02.2026 по 14.02.2028
ООО «Сильван-Инвест», УНП 192927433, лицензия №02240/383, Министерство юстиции РБ, 24.09.2019.
Посмотреть на карте
Характеристики
| Цена: | 35р |
|---|---|
| Цена за метр: | от 35р/м2 |
| Тип: | офис, склад, здание, торговое, сфера услуг, производство |
| Адрес: | аг. Колодищи, Тюленина, 18/1 |
| Площадь: | 706.40 - 853.60 м2 |
| с/у: | c/у |
| Телефон: | 1 телефон |
| Отопление: | отопление |
| Свет: | свет |
| Юр. адрес: | юридический адрес |
| Отдельный вход: | да |
| Первый этаж: | да |
| Наличие парковки/машиномест: | парковка |
| Договор на оказание риэлт. услуг: | № 13/3а от 15.02.2026 по 14.02.2028 |

Скачать мини-презентацию




